Subscribe

Digital Design
By now, you’ve heard more than you could have imagined about the possibilities of BIM for structural engineering. You might even be convinced of the benefits: intelligent models, auto-generating floor plans and sections, and better collaboration with stakeholders. But how do you actually get started?
Digital Design
Last year, Autodesk announced some major changes that will impact a lot of its software users very soon. Beginning February 1st, users will no longer be able to enjoy discounted pricing on new software releases. Instead, if you want to upgrade to the latest releases (coming this spring), you’ll have to pay full price for a new license.
Digital Design
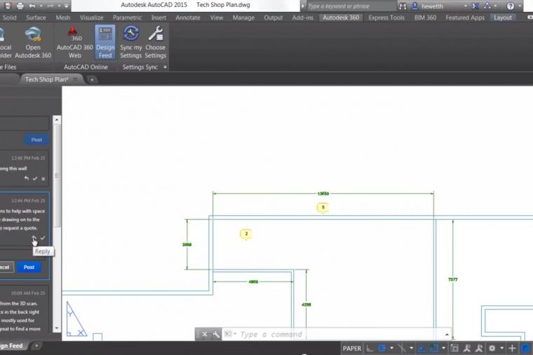
If you are like most people, the first time you opened your AutoCAD 2015 the first thing you probably did is start closing all of the palettes that popped up on your screen, (like everyone did with AutoCAD 2014 and so on) to get it back to the way old way you are used too. That’s typical human behavior. So I figure it is my job to explain what that palette you closed does. From there you can make the decision whether you think that this is something you feel could be useful in your normal everyday workflow to help communication with your Coworkers, Clients, Consultants or Contractors.
Digital Design
Happy 2015! And what better way to kick off the year than with Lynn Allen and her always awesome and useful AutoCAD tips and tricks. Lucky for us, Lynn is joining forces with our friends at Synergis Engineering Design Solutions to share her tips via a live webinar.
Digital Design
There are several enhancements of longstanding AutoCAD capabilities in the 2014 release. Features such as support for 3D printing and the command line were streamlined and significantly enhanced in AutoCAD 2014, so that they were easier to use and integrated seamlessly into users’ workflow.
Digital Design
Here we are again, another New Year, another opportunity to look back and plan ahead! We’ve published over 100 articles this year, featuring insights, tips, best practices and commentary on all aspects of public sector digital design. A big thank you goes out to our stable of guest bloggers and partners, including Line//Shape//Space, Synergis Engineering Design Systems, CADD Microsystems and CADSoft Consulting.